Nambiar Ellegenza in Sarjapur Road, Bangalore Details, Reviews, Price, Floor Plan, Photos, Master Plan, Brochure, Amenities, Location & More
Overview
Imagine staying somewhere that offers more than just a place to call home. Welcome to Nambiar Ellegenza, where comfort and luxury merge to provide an unmatched way of life. This project, which covers a huge 30-acre area, features ultra-modern residences that go above and beyond. Ellegenza is a luxurious haven with first-rate amenities, upscale fixtures, and breath taking attention to detail.
Location and Connectivity
Prime Location Between Hosur Road and Sarjapur Road
Nambiar Ellegenza offers the right combination of serene living and urban conveniences. Easy proximity to important IT hubs, prestigious international schools, and first-rate healthcare are available to residents, guaranteeing a comfortable and well-connected living in a lively area.
Amenities and Features
The Luxurious Clubhouse
The large clubhouse of Nambiar Ellegenza, which spans 1.5 acres, is one of its main features. This elegant area, which is intended for both leisure and relaxation, gives residents a place to chill out, socialize, or make use of a variety of top-notch services.
Project Size
23 Acre
Launch Date
Jun 18
Total Units
304
BHK
4, 5, 6
NAMBIAR BUILDERS By NAMBIAR ELLEGENZA
New Launch in Sarjapur Road
- Sarjapur Road , Bangalore
- Luxury Plots
- Launching Soon
100 + Acres township
1000 Plots ( Phase 1 )
RERA No: On Request
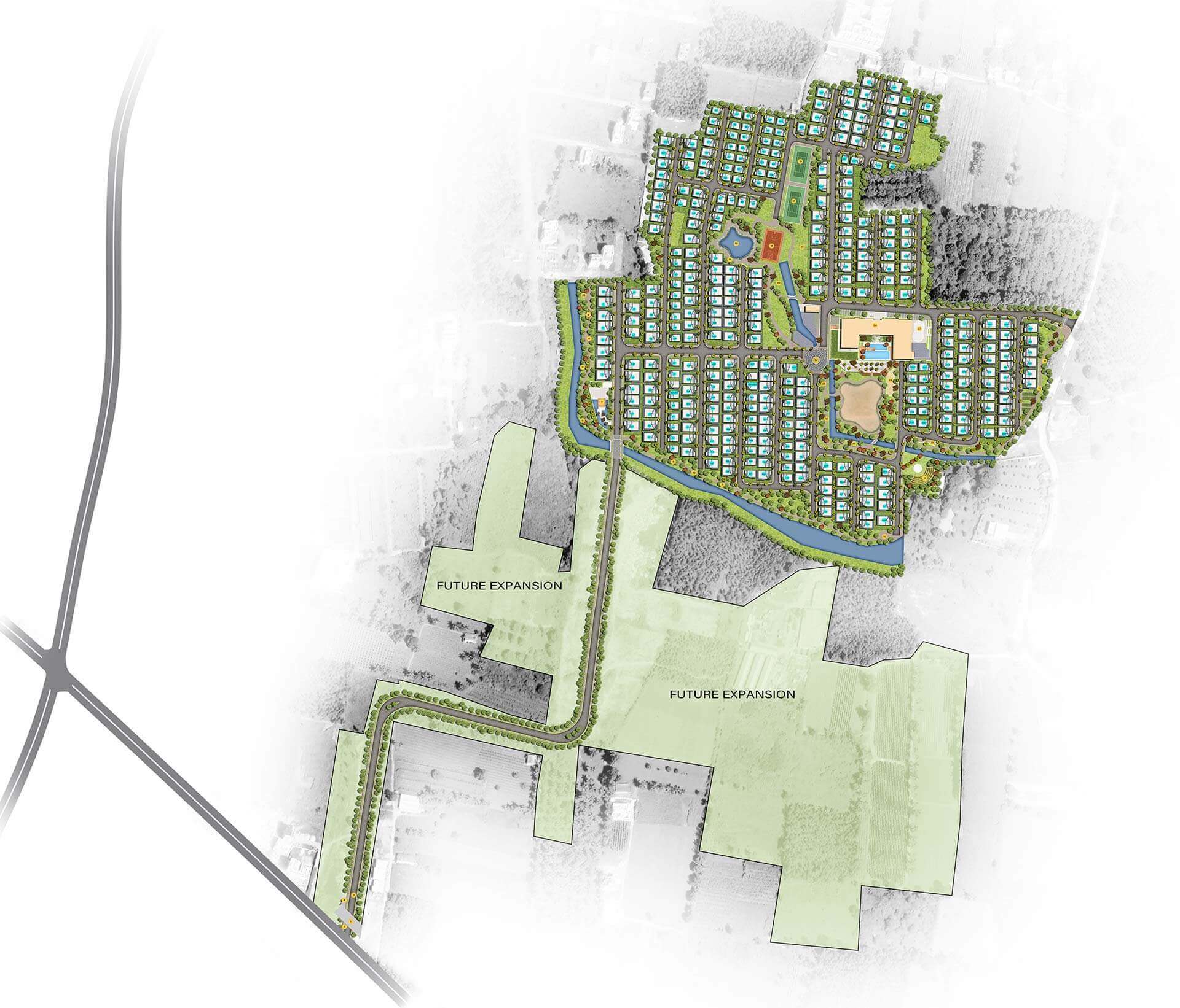
Nambiar Ellegenza Master Plan
Nambiar Ellegenza Price List
| Villa Type | Villa Size (Sq.ft) | Price |
|---|---|---|
| 4+1 BHK East | 3421 to 3432 | |
| 4+1 BHK East | 3442 to 3451 | |
| 4+1 BHK Corner | 3466 | |
| 4+1 BHK Corner | 3548 | |
| 4+1 BHK | 3687 | |
| 4+1 BHK | 4037 | |
| 5+1 BHK Corner | 4974 |
Gallery
nambiar Ellegenza Project Highlights
PROJECT LOCATION
Chandapura-Dommasandra Circle, Sarjapur Road
Project Approved by:
BMRDA Approved and RERA
Registration under process
Type of Project:
Luxury Villas
Project Address:
Chandapura-Dommasandra Circle, Sarjapur Road Bangalore, Karnataka - 562110.
Total Land Area:
23 Acres
No. of Villas:
1000 Plots ( Phase 1 )
Nambiar Ellegenza Amenities
- World-Class Gym
- Clubhouse
- Eucalyptus Forest
- Indoor Games Area
- Party Area
- Extensive Jogging Track
- Sports Courts
- Kids Play Area
- Central Boulevard
- Amphitheatre
- Activities Yoga Lawn
- Cycling Track
- Games Room
- Multi-Purpose Hall
- Fireplace
- Swimming Pool
- Jogging Track
- Open Playground
Nambiar Ellegenza
Proximity to Major IT Hubs
For those working in the tech industry, Ellegenza offers unparalleled convenience. Major IT hubs such as Electronic City, WIPRO SEZ, Whitefield, and the Outer Ring Road are just a short drive away. This strategic location reduces commute times, allowing more time for family and leisure.
Nearby Educational Institutions
Families with children will appreciate the proximity to some of the best schools in the area. Renowned institutions like TISB, Greenwood High, Inventure Academy, Bethany High, Oakridge, DPS, Primus, and Harvest International are all within easy reach, ensuring a top-notch education for your kids.
Shopping and Entertainment Options
Living at Ellegenza means you are never far from shopping and entertainment hubs. Total Mall, Central Mall, Forum Value Mall, and D Mart offer a variety of shopping, dining, and entertainment options, making weekends and evenings fun and convenient.
Accessible Healthcare Facilities
Healthcare is a top priority, and residents of Ellegenza have easy access to top-notch medical facilities. Major hospitals like Narayana Health, Manipal Hospital (Sarjapur Road), Motherhood Hospital (Sarjapur Road), and Sakra World Hospital are just a short distance away, ensuring that medical care is always within reach.
Functional Service Buildings
Ellegenza’s service buildings are strategically placed to ensure that all essential services are easily accessible without disrupting the community's serene environment. These buildings are designed to be both practical and visually appealing.
Kid-Friendly Areas
Children's play areas are thoughtfully designed to be safe and fun, ensuring that kids have their own space to play and explore. These areas are equipped with modern play equipment and are surrounded by green spaces.
Fitness and Wellness Zones
Fitness enthusiasts will love the state-of-the-art fitness station, yoga deck, and meditation pavilion. These zones are designed to promote a healthy and active lifestyle, providing spaces for exercise and relaxation.
Community and Lifestyle
A Community-Oriented Environment
Ellegenza is more than just a place to live; it's a community. The design encourages interaction and fosters a sense of belonging among residents. From chit-chat zones to community events, there's always an opportunity to connect with neighbors.
A Safe and Secure Neighborhood
Safety is paramount at Ellegenza. The community is equipped with the latest security measures, ensuring that residents can enjoy peace of mind. From 24/7 security personnel to surveillance systems, every aspect of safety is covered.
Investment Potential
The area around Nambiar Ellegenza is experiencing significant growth, making it a prime location for real estate investment. With the expansion of IT hubs and other infrastructure developments, property values are expected to rise.
Return on Investment
Investing in a villa at Ellegenza promises excellent returns. The combination of a prime location, luxurious amenities, and a thriving community ensures that your investment will appreciate over time.
Future Prospects
The future looks bright for Nambiar Ellegenza. With ongoing developments and a growing community, the potential for further growth and prosperity is immense. Investing here means securing a stake in a thriving future.
The Land-Craft Difference
Central Boulevard
In the heart of the community is a central boulevard with a park that extends from the property's entrance to the end, providing a lovely walking space during the trees.
Tree Museum
Trees are one of nature's most gorgeous creations. A tree museum is located in Central Park and celebrates a carefully selected group of trees, including information about their history and origin, advantages, and other fascinating facts.
Cobbled Streets
In our city, the streets are adorned with exquisite handcrafted cobblestones that seamlessly blend with the natural environment. These cobblestones boast remarkable durability and weather resistance, surpassing traditional tar roads in longevity and resilience. Moreover, their unique texture naturally slows down vehicles, eliminating the necessity for disruptive speed bumps. Skilled artisans carefully place each stone, ensuring precision and quality in every installation. Additionally, the streets feature gentle slopes engineered to prevent water pooling during rainstorms, enhancing both safety and aesthetics throughout the urban landscape.
Walking Paths
Embarking on a stroll through the woods can prove to be one of the most rejuvenating and invigorating activities one can partake in. The extensive network of walking trails encircling the community provides an opportunity for exploration and leisurely enjoyment amidst the lush canopy of trees. As you traverse these pathways, you'll encounter a delightful variety of wildlife, from the melodious songs of birds to the playful antics of squirrels, and the graceful fluttering of butterflies, among other captivating species. Each step along these trails offers a chance to reconnect with nature and revel in its mesmerizing beauty.
Cycling Tracks
Another wonderful way to experience nature is on a bicycle. Cycling tracks running through the property allow you to enjoy nature on a bicycle.
Architectural Design
Shibanee & Kamal Architects' award-winning home designs are available for free, as is access to our interior design platform, which allows you to custom design your home to match your lifestyle, practical demands, aesthetic preferences.
Construction, Interiors & Furniture
Nambiar Ellegenza offers high-quality construction and craftsmanship, including interior finishes, furnishings, cabinetry, and kitchens, as well as Lifetime Maintenance support.
Property Management
Nambiar Ellegenza offers ongoing community maintenance for as long as you require our assistance. This maintenance service specifically caters to communal spaces and excludes any upkeep related to individual plots of land, unless your residence has been constructed by Nambiar Ellegenza.
Clubhouse
The clubhouse and amenities we offer uphold the ethos of People-Centered Design, ensuring that they are welcoming and meticulously crafted with a focus on even the smallest details, mirroring the warmth and care evident in our homes.
Nambiar Ellegenza Specification
Nambiar Ellegenza is designed with the finest specifications to ensure a luxurious and comfortable living experience. Here are the key specifications:
Luxurious Clubhouse: Spanning over 1.5 acres, the clubhouse offers a wide range of amenities, providing a central hub for recreation and social activities.
Extensive Landscaping: The project features six acres of beautifully manicured pathways and gardens, creating serene green spaces for residents to enjoy.
Multiple Green Pockets: Strategically placed green pockets throughout the community enhance the natural beauty and provide tranquil spots for relaxation.
Advanced Amenities: Residents can enjoy top-of-the-line facilities including a fit station, meditation pavilion, tennis courts, and a nature trail, catering to diverse lifestyle needs.
EV Charging Points: The inclusion of EV charging points underscores a commitment to sustainable living and supports the use of electric vehicles.
Centralized Hydro-Pneumatic System: This advanced system ensures a consistent and efficient water supply across the community.
Solar Energy Provisions: Thoughtful provision for solar energy reflects the development’s dedication to renewable energy sources and sustainability.
Nambiar Ellegenza combines luxury with practicality, offering an unparalleled living experience with its high-end features and eco-friendly initiatives.
Nambiar Ellegenza villa Features
Nambiar Ellegenza offers an array of meticulously designed plot features to enhance your living experience:
Entrance Portal: The grand entrance portal sets the stage for the luxury that lies within, making a strong first impression.
Arrival Plaza and Driveway: Designed to welcome residents and guests alike, the arrival plaza and driveway are beautifully landscaped and architecturally impressive.
Orchards: Multiple orchards within the community provide lush green spaces that add to the scenic beauty and offer spots for relaxation.
Nature Trail: A serene nature trail weaves through the community, perfect for leisurely strolls and reconnecting with nature.
Yoga Deck: Designed for tranquility and wellness, the yoga deck provides a peaceful environment for your yoga practice.
Amphitheatre: This outdoor amphitheatre is ideal for cultural events, gatherings, and social interactions.
Elders Zone: A dedicated area for senior residents to relax and socialize, ensuring a comfortable and inclusive environment.
Children’s Play Area: A safe and fun space for children to play, explore, and enjoy their time outdoors.
Sit-Out Zones: Strategically placed sit-out zones throughout the community provide spots for relaxation and casual conversations.
Tennis and Basketball Courts: State-of-the-art sports facilities include multiple tennis courts and a basketball court, promoting an active lifestyle.
Natural Pond: Adding to the natural beauty, the pond offers a serene water feature within the community.
Paw Park: A designated area for pet owners to walk and play with their pets, ensuring a pet-friendly environment.
Skating Court: A dedicated skating court for residents to enjoy recreational activities..
Meditation Pavilion: A peaceful pavilion designed for meditation and quiet reflection.
Chit-Chat Zone: Areas designed for socializing and community interactions, fostering a sense of belonging among residents.
Nambiar Ellegenza Location
Connectivity: Hosur Road and Sarjapur Road Easy access to major thoroughfares ensures seamless connectivity to various parts of the city. Proximity to the Outer Ring Road enhances connectivity and reduces commute times.
Major IT Hubs: One of the largest IT hubs in India, Electronic City is just a short drive away. and WIPRO SEZ is A significant hub for IT professionals, providing ample job opportunities. Whitefield is Another major IT corridor, housing numerous multinational companies and tech parks.
Educational Institutions: Proximity to reputed schools such as TISB, Greenwood High, Inventure Academy, Bethany High, Oakridge, DPS, Primus, and Harvest International ensures quality education for children.
Shopping and Entertainment: Nearby shopping centers like Total Mall, Central Mall, Forum Value Mall, and D Mart offer a wide range of retail and entertainment options. Numerous dining, cinema, and recreational options are available within easy reach.
Healthcare Facilities: Renowned hospitals such as Narayana Health, Manipal Hospital (Sarjapur Road), Motherhood Hospital (Sarjapur Road), and Sakra World Hospital are located nearby, ensuring access to top-notch medical care.
Nambiar Ellegenza Homes has a reputation for crafting living spaces that seamlessly blend aesthetics, functionality, and sustainability. These plots are no exception, as they are designed to offer a balanced and comfortable living environment. Whether you envision a contemporary architectural masterpiece or a cozy retreat, these plots provide the foundation for your aspirations.
Investing in Nambiar Ellegenza Plots means investing in a future where you can enjoy the pleasures of nature while still being close to modern conveniences. It's a chance to be part of a community that values quality of life and appreciates the finer aspects of living.
Secure your spot in this picturesque haven, where Nambiar Ellegenza Plots invite you to create a home that reflects your vision, values, and dreams. Embrace a lifestyle that celebrates nature, tranquility, and the freedom to design your living space just the way you want.
FAQs
Frequently Asked Questions about the project
Where is Nambiar Ellegenza project located?
The project is located in Sarjapur Road , Bangalore India
What kind of development is Nambiar Ellegenza Project?
The project is residential development located in Bangalore, India.
When is the handover of the project?
The handover is scheduled for December 2024
What are the different variants of units available in Nambiar Ellegenza
The units are available in 4+1 BHK and 5+1 BHK
How do I book my dream unit at “Nambiar Ellegenza” project?
Visit the "Nambiar Ellegenza" project's official website or get in touch with the sales office directly to reserve your ideal unit. Together with their sales team, you can arrange a site tour, choose your ideal unit, and finish the booking procedure.
What is the status of “Nambiar Ellegenza” Apartment project?
As of right now, the "Nambiar Ellegenza" project is being built, with a December 2024 handover date.
What is the total project area?
The total project area is 23 acres.
.png)